
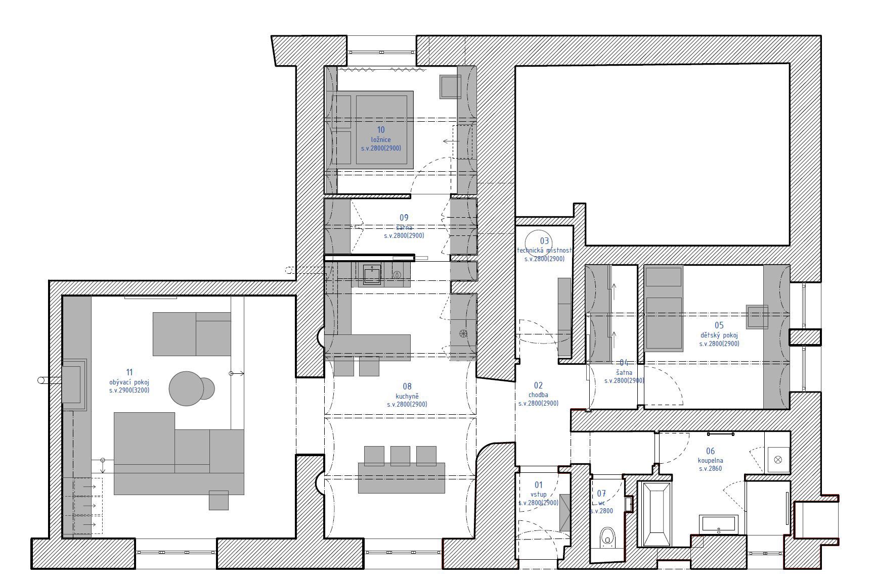
Prostor je rozvržen křížem. Vstupuje se do srdce domu které je rozcestníkem do jedné zóny obytného prostoru kuchyně s jídelní částí a obývacím prostorem. Druhá zóna od vstupu je členěna na mokrou část domova s wc a koupelnou a pak na hostinskou část / dětský pokoj. Ložnicové pokoje jsou od obytných místností odděleny vždy alespoň dvěma dveřmi, přičemž šatny vytvářejí přechodové klidnící zóny.

Rozšířením průchodu mezi kuchyňskou a obývací místností se docílilo propojení obou místností. Jelikož se v celém přízemí domu odkopává původní hliněná podlaha tak jsme využili potenciálu a snížili část úrovně v obývacím prostoru pro vytvoření intimnější atmosféry v sousedství nového krbu. Pocitově je tak výškově oddělena vyvýšená část pracovního koutu od relaxačního. Z původního interiéru jsou zachovány symetrické niky v kuchyni, klenbové cihlové stropy a na hrubo bedněné betonové stropy v budoucí koupelně.

Investor zvládá velkou část rekonstrukce svépomocí, což prohlubuje osobní pouto ke zděděnému místu. S přidáváním nových vrstev obydlí zároveň i postupně odkrývá původní stopy, které tak ve finále mohou vést s novými obyvateli dialog.
TÝM

Tereza Komárková

Alice Boušková
Statika: Ing. Lukáš Bendík