
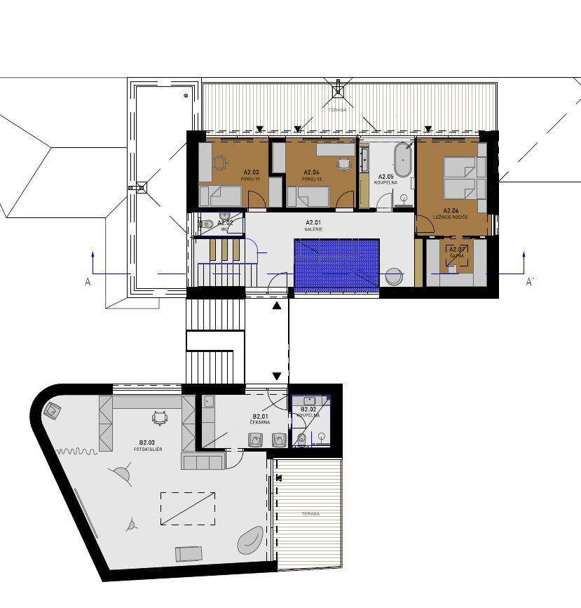
Ideální bylo načasování - oslovili nás ve chvíli, kdy ještě neměli stavební povolení a stavba byla navrhována projekčním ateliérem. Studii interiéru jsme začali úpravami dispozic které byly následně zapracovány projektanty do vznikající prováděcí dokumentace stavby. Shodli jsme se na základních parametrech - materiály, barevnosti a funkčnost a to vedlo k dopracování projektu interiéru včetně výkresů atypového vybavení.
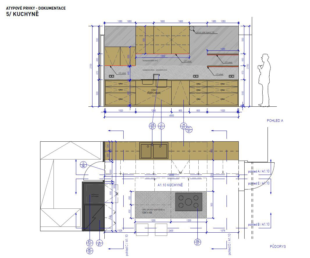
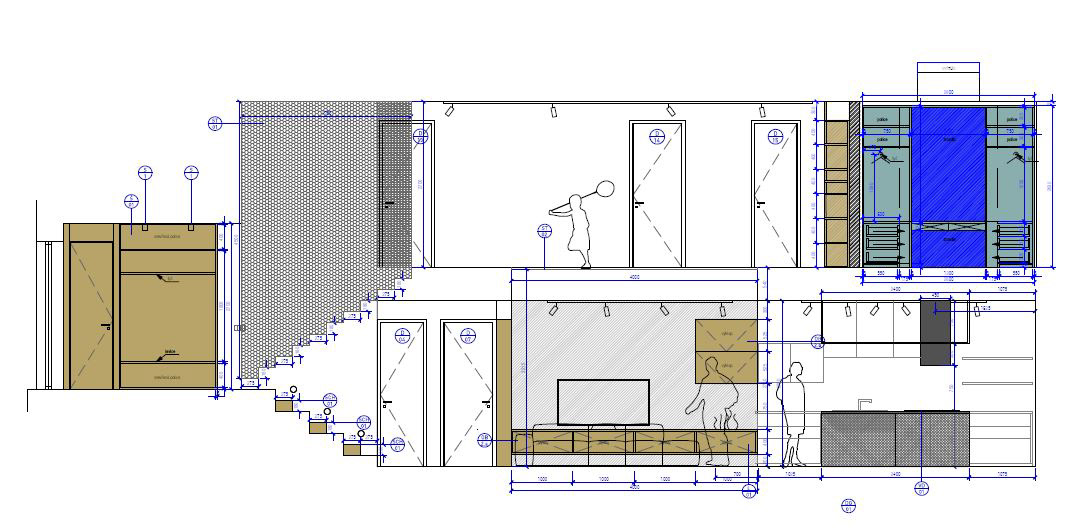
Výběr materiálů odráží vkus investorů, vztah k praktičnosti a minimalistické cítění. Velká část konstrukcí je přiznaná - bedněné monolitické stropy a broušené betonové podlahy s viditelnou zrnitostí. Trojkombinaci odstínů betonu doplňují povrchové stěrky použité v koupelnách a kuchyni. Nábytek je převážně z dubového dřeva kombinovaného s kovovými černými detaily.
Standardní postup při navrhování je takhle : založíme nástěnku na Pinterestu, pozveme do ní klienty, přidáváme inspirace, z nichž si klienti vybírají, s čím souhlasí a ostatní skončí ve složce "koš". U tohoto projektu sehrála roli velká angažovanost investorů, jejich zájem o architekturu a nadhled. Když jsem je poprvé poznala, tak předvedli již hotový výběr inspirací na Pinterestu, kam si ukládali všechno možné, co by se jim na vysněném domově líbilo. Říkali, že konzultace bude rychlá, že výběr už protřídili... a obrovskou část promazali... abychom se mohli soustředit na to nejpodstatnější... po protřídění měla nástěnka 500 (!) obrázků :-) ...
Poprvé jsem byla v rámci procesu navrhování v pozici toho, kdo si vybírá, a hází do koše. Pro architekta je to příjemná změna a zkušenost, pro standardního klienta je vybírání si součástí našich služeb.

TÝM

Tereza Komárková

Projekt stavby: ateliér Europrojekta